Biomanufacturing Facility

Madison, WI

535 Science Drive
University Research Park
Madison, Wisconsin

535 Science Drive offers a rare opportunity to lease a fully built-out Class A biomanufacturing facility in one of the Midwest’s premier research and innovation hubs.

Available Now

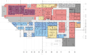
41,000 SF | Fully Improved | GMP-Ready

 

Originally developed in partnership with Stratatech (Mallinckrodt) to produce Stratagraft®, an FDA-approved regenerative skin therapy, the facility was extensively upgraded in 2018 to support compliant, high-volume production.

 

Designed by Flad Architects, Affiliated Engineers, and constructed by Vogel Bros., this facility is ready to support your operations immediately.

 

Facility Highlights

  • Total Area: 41,000 SF GMP-compliant facility
  • Cleanroom: Five ISO-7 processing rooms totaling 6,000 SF with airlocks, differential pressure sensors, epoxy finishes, redundant HVAC, and MERV 14 + HEPA filtration at 30-40 ACH, 20ACH for ISO8 spaces
  • Laboratories: BSL-2 and QC lab in cleanroom boundary with casework, clean air, high power capacity, and nearby EM/specialty labs
  • Office & Amenities: Modern office, conference, reception, and support areas
  • Validated Cold Storage: Three mapped 2–8°C cold rooms with redundant systems
  • Shipping/Receiving: Temperature-controlled dual docks, secure material flow, High bay warehouse (ambient) and 2–8°C

 

Key Building Systems

  • Power: 1,600A, 480Y/277V 3-phase 4-wire service with dual utility feeds and three natural gas backup generators
  • HVAC: Redundant AHUs, chilled glycol, and heating hot water/glycol systems serve cleanrooms and labs, heat recovery with run around
  • Clean Steam: 1,750 lb/hr at 45 psig for humidification and autoclaves
  • Purified Water: USP-purified grade, 4 GPM production with 30 GPM distribution
  • Compressed Air: Redundant, dry, oil-free air at -40°F dewpoint
  • LN2 Distribution: Vacuum-jacketed piping to two areas piped to external bulk tank pad
  • Process Vacuum: Centralized, sized for 9 scfm at 19” Hg
  • Fire Protection: 75HP electric fire pump, wet sprinkler systems, and FK-5-1-12 clean agent system in select areas
  • IT & Security: Structured Cat6 cabling, access control, intrusion detection, and full video surveillance

 

Ideal Use Cases

  • Cell & gene therapy
  • Biologics and advanced therapeutics
  • Regenerative medicine
  • Vaccine or tissue-based manufacturing
  • CDMOs seeking turnkey GMP infrastructure

Move-in ready. Contact us to schedule a tour or request full specs.
Paul Muench
Associate Director
University Research Park
pdmuench@wisc.edu
608-441-8000